Mostrar 10136 resultados

Descrição arquivística
8520 resultados com objetos digitais Mostrar resultados com objetos digitais
implantaçãoSALA_20maio
PT-TEATRAO-B-05-04-02-0024-0002 · Documento · 2023-05-29
Parte de O Teatrão

Planeamento de organização de cenografia, iluminação e plateia para o espetáculo O Senhor Biedermann e Os Incendiários

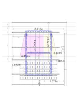
implantação_20maio
PT-TEATRAO-B-05-04-02-0024-0001 · Documento · 2023-05-29
Parte de O Teatrão

Planeamento de organização de cenografia, iluminação e plateia para o espetáculo O Senhor Biedermann e Os Incendiários

implantação_final
PT-TEATRAO-B-05-04-03-006-0002 · Documento · 2024-04-12
Parte de O Teatrão

Projeto final para disposição das bases do cenário de Condomínio.PT

IMG_9967
PT-TEATRAO-A-097-0018-00095 · Documento · 2023-05-11
Parte de O Teatrão

Imagem do espetáculo Revolution (título provisório)

Ana Flores
IMG_9892
PT-TEATRAO-B-05-04-03-0018-00038 · Documento · 2024-07-08
Parte de O Teatrão

Fotografia de espetáculo

Teresa Valente
IMG_9770
PT-TEATRAO-A-0100-0018-00064 · Documento · 2024-09-24
Parte de O Teatrão

Imagem do espetáculo Com que Linhas te Cruzas na Lousã

Teresa Valente
IMG_9652
PT-TEATRAO-A-097-0018-00094 · Documento · 2023-05-11
Parte de O Teatrão

Imagem do espetáculo Revolution (título provisório)

Ana Flores
IMG_9543-Aprimorado-NR
PT-TEATRAO-A-099-0018-000354 · Documento · 2024-06-06
Parte de O Teatrão

Fotografia de espetáculo

Teresa Valente
IMG_9542-Aprimorado-NR
PT-TEATRAO-A-099-0018-000353 · Documento · 2024-06-06
Parte de O Teatrão

Fotografia de espetáculo

Teresa Valente
IMG_9535
PT-TEATRAO-A-099-0018-000352 · Documento · 2024-06-06
Parte de O Teatrão

Fotografia de espetáculo

Teresa Valente